为了帮助应对COVID-19疫情,一项新计划正悄然诞生。一个名为CURA(呼吸系统疾病的互联单位)提出将运输集装箱变成了插入式重症监护箱。这也是CURA的第一个建筑物,目前正在意大利米兰市建造。根据包括carlo ratti在内的项目背后的团队所说,这些单元的安装速度可与医院帐篷一样快,但由于带有负压的生物隔离,其安全性可与隔离病房一样。

在COVID-19大流行期间,由设计师,工程师,医学专家和军事专家组成的国际特别工作组共同致力于CURA,这是一个旨在建设重症监护病房(ICU)的开源项目。该计划使用重新设计的运输容器来创建可插入式生物防护吊舱,该吊舱可以在世界各地的城市中快速部署,从而迅速应对医院ICU空间的短缺。

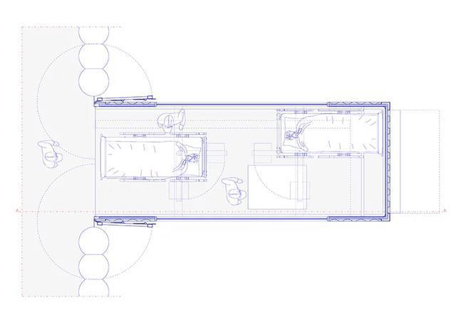
CURA是用于呼吸道感染患者的紧凑型加护病房,装在一个20英尺的联运集装箱中,带有生物容器(由于负压)。每个单元都可以自主工作,并且可以随处运送。单个吊舱通过可充气结构连接,以创建多个模块化配置(从4张床到40多个床),可以在几个小时内完成部署。一些吊舱可以放置在医院附近(例如停车场)以扩大ICU的容量,而其他吊舱则可以用于创建各种规模的自立式野战医院。

CURA旨在提高现场医院设计中现有解决方案的效率,以使其适应当前的大流行。在过去的几周中,受COVID-19影响最严重的国家/地区的医院一直在努力提高其ICU能力,以接纳越来越多的重度呼吸系统疾病患者。该团队指出,尽管大流行在发展,但未来几个月国际上将需要更多的ICU。

CURA努力做到与医院帐篷一样快的安装速度,但由于具有生物隔离功能(提取器会产生室内负压,符合机载感染隔离室AIIR的标准),因此可以像医院的隔离病房一样安全地工作。该设计遵循中国当局发布的COVID-19医院标准,同时加快了执行速度。

由于运输集装箱可以轻松地通过不同的运输方式移动并在世界各地重复使用,因此CURA吊舱被认为是一种即用型解决方案。每个吊舱将包含两名COVID-19重症监护患者所需的所有医疗设备-包括呼吸机和静脉输液架。此外,可以通过充气走廊连接各个单元。



