咖啡厅“单元”是工厂在基辅的振兴项目之一,也是我们的团队正在实施的一个项目。这家咖啡馆是为那些在IT学校里学习的学生提供的。 一开始我们没有打算建造它。但在IT学校项目工作时,我们了解到,在重建的建筑中,没有足够的空间供一个大食堂或自助餐厅使用。所以,我们希望投资者单独建造咖啡馆。

我们希望能够尝试使用海运集装箱,在草图之后,我们得到批准准备详细文件。咖啡厅成了一个特殊的名片和亮点。居民、学生和其他人在Unit City(振兴区域的名字)上吃饭,开会,讨论业务,或结交朋友。

在 Unit Cafe 项目的实施中使用了14个海运集装箱,其中一个是垂直的,里面有一个楼梯。二楼有一个位于底层的控制台上的开放式露台。二楼的控制台为7.5米。它有一个很好的朝向学校和商业中心的视野。一侧的水面朝向桥的入口处。


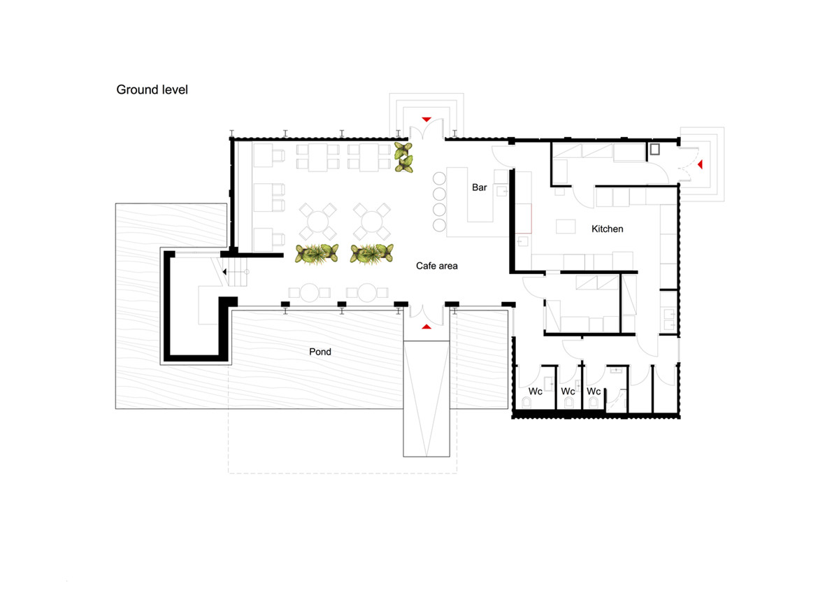
室内外有一些共同之处。一楼也部分涂上绿色。在一楼和二楼有舒适的沙发、桌椅、椅子和植物。一楼有厨房,盥洗室和厨房。咖啡厅总面积为275平方米。





图纸

一层平面图

二层平面图
项目信息
建筑师:TSEH建筑事务所
位置:乌克兰 基辅
主持建筑师:Denis Zadniprovskyi,Iurii larionov,Antonina Kaplia
面积:275.0平方米
项目年份:2016
摄影师:Mihail Cherny - Evgen Zuzovsky
顾客:Vasyl Khmelnytsky的基金 - K.Fund
视频:Yegor Troyanovsky(导演),Olga Beskhmelnitsyna(制作),Koloah(音乐)
